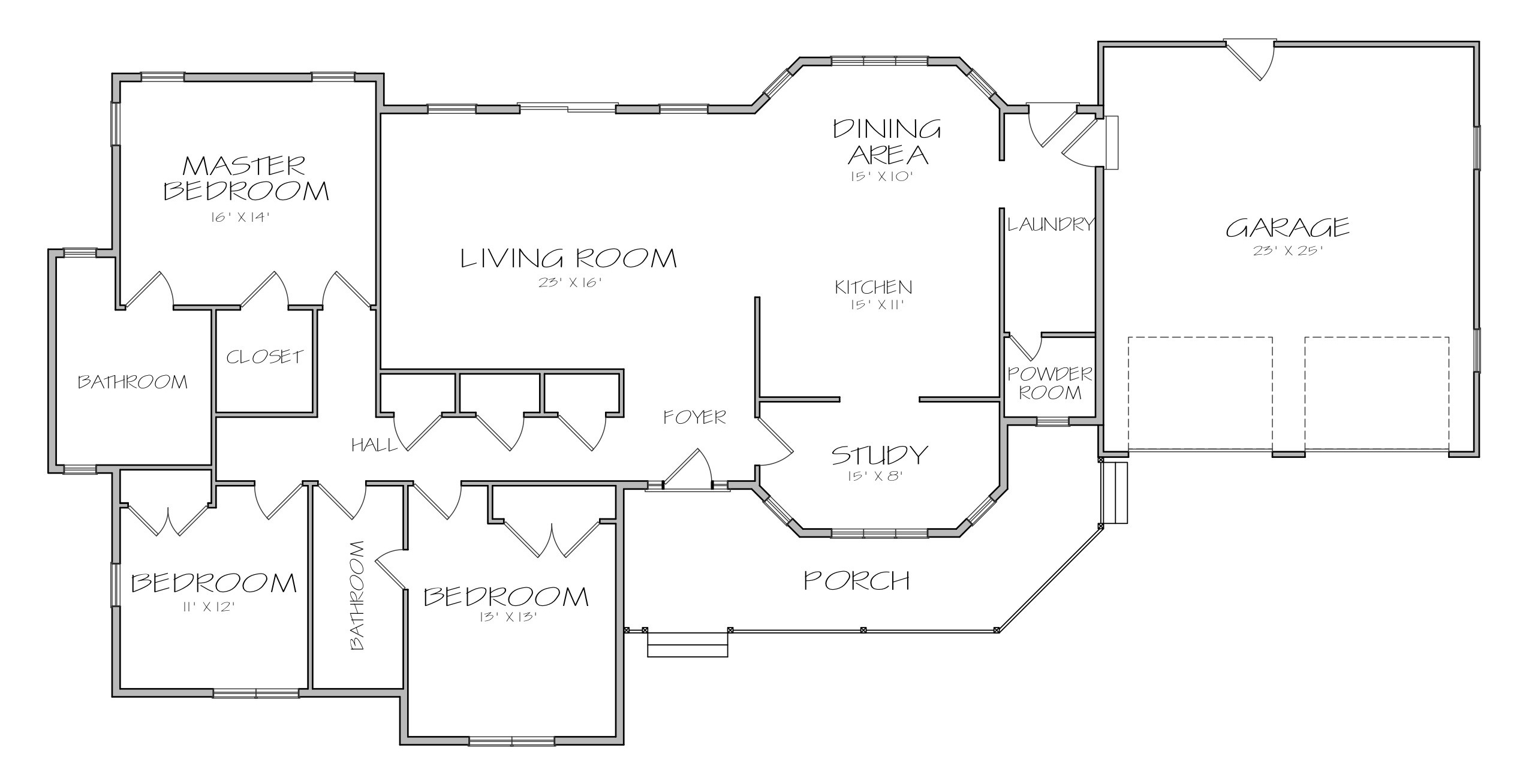
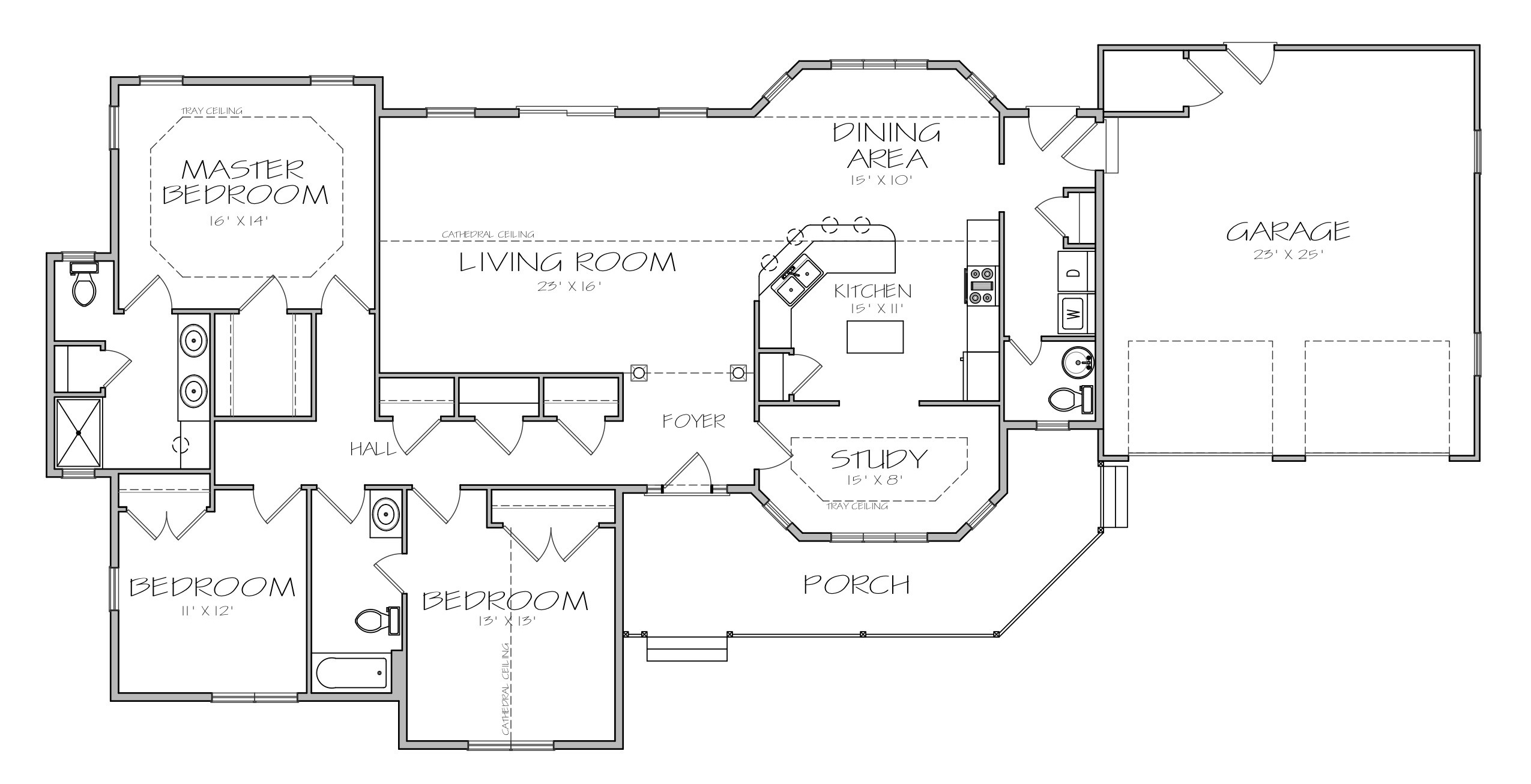
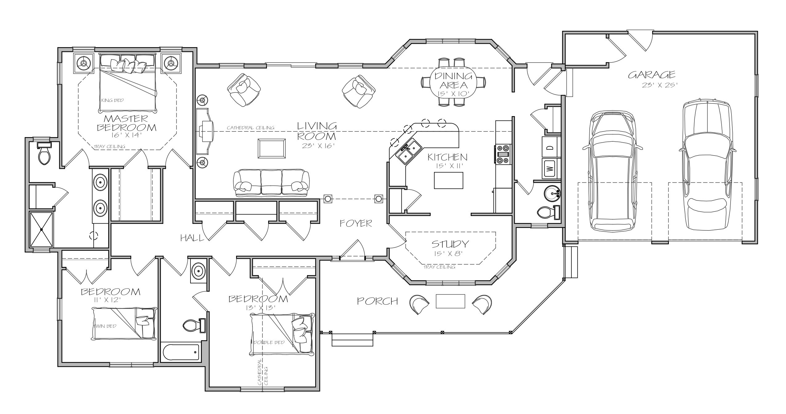
Help boost your listing by utilizing floor plan layouts to make the flow of your house or commercial listing come to life!
With quick turn around times, services can include replicating a provided plan from a sketch or on-site measuring. Features and floor plan details can include room names/notes, room sizes, and furniture. Contact Me for pricing.



